Proyectos de ingeniería


  • Evaluación técnica y estratégica de fuentes de abastecimiento de agua para garantizar disponibilidad, calidad y sostenibilidad del recurso hídrico.
  • Diseño y ejecución de proyectos para la modificación controlada o protección de cauces naturales, enfocados en la mitigación de riesgos, la gestión hidráulica y la conservación ambiental.
  • Estudios Hidrogeológicos.
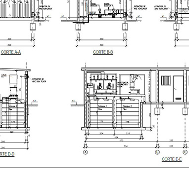
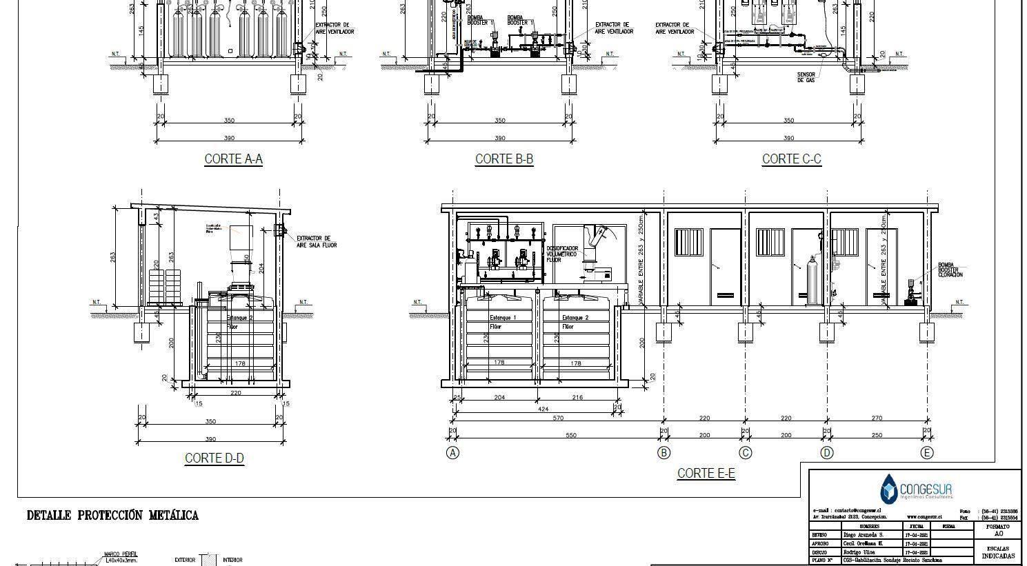
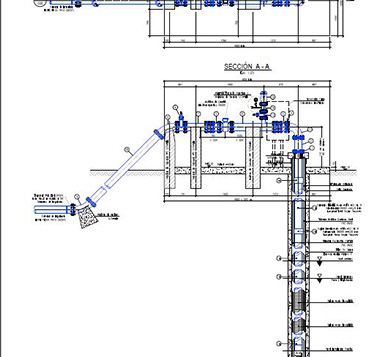
  • Diseño de Habilitación de Pozos Profundos.
  • Diagnóstico de Pozos Profundos y su Optimización Operacional.
  • Diseño de redes de Agua Potable y Alcantarillado.
  • Diseño de Plantas Presurizadoras.
  • Diseño de Plantas Elevadoras.
  • Proyectos Particulares de Agua Potable y Aguas Servidas, autorizados por SEREMI de Salud.
  • Proyectos domiciliarios de agua potable y aguas servidas
  • Proyectos de captación y tratamiento de agua potable.
  • Optimización operacional de infraestructura de agua potable y aguas servidas (estudios de reemplazo y reposición de redes, colectores e impulsiones).